• CAPOLRA.com
  • C/ Guitard 43, 5º 1ª
  • 08014 Barcelona (Barcelona)
  • 93 490 67 48
  • 34934906748
  • Contacto
Búsqueda Avanzada
Oficina en Barcelona, Sant Andreu, venta

Oficina en Barcelona, Sant Andreu, venta

Nº de referencia: 33d070

Precio: 155.000€

  • Sup. Útil 102 m²
  • Baños 1

Oficina / Local en venta en el barrio de Sant Andrés Palomar

Referencia 33d070

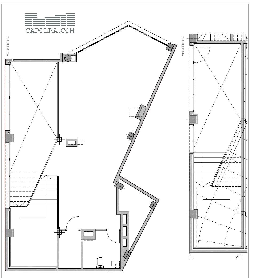
Oficina / Local en planta baja distribuida en 2 plantas comunicadas entre si por amplia escalera, con 2 puertas de acceso y varios ventanales de aluminio.

SUPERFICIES:
■ Planta baja de 40m² (39,85m²).
■ Altillo de 62m² (61,95m²).

CARACTERÍSTICAS:
■ Zonas diáfanas.
■ 2 puertas de acceso.
■ Climatización frío/calor mediante splits.
■ Ventanas aluminio.
■ Aseo privativo.
■ Pavimento de gres.
■ Plantas comunicadas mediante escaleras.
■ Gastos de comunidad e IBI a confirmar

COMUNICACIONES:
■ Bus: 11, 126, 133, H8, N9, V31
■ Metro: L9N/L10N Onze de Setembre/L1 Fabra i Puig
■ Renfe: Sant Andreu Arenal

Disponemos de llaves del local.

Para visitas u otras oficinas similares:
-t.93 490 67 48
-www.capolra.com
-contacto@capolra.com

Certificación energética: E E

Mapa

Detalle

  • Tipo de propiedad: Oficina
  • Tipo de operación: Venta
  • Provincia: Barcelona
  • Población: Barcelona
  • Zona: Sant Andreu
  • Baños: 1
  • Sup. Útil: 102 m²
  • Sup. Construida: 102 m²
  • Tipo de obra: Segunda mano
  • Certificación energética (consumo): E
  • Certificación energética (emisiones): E

Características

  • Tipo de edificio: Uso mixto
  • Planta:
  • Exterior:
  • Año Construcción: 2015
  • Vistas: Despejadas
  • Tipo de calefacción: Eléctrica - Individual
  • Contraventanas: Aluminio
  • Suelo del inmueble: Gres
  • Aire acondicionado:
  • Doble acristalamiento:
  • Estado de conservación del edificio: En buen estado
  • Persianas:

Oficina / Local en venta en el barrio de Sant Andrés Palomar

Referencia 33d070

Oficina / Local en planta baja distribuida en 2 plantas comunicadas entre si por amplia escalera, con 2 puertas de acceso y varios ventanales de aluminio.

SUPERFICIES:
■ Planta baja de 40m² (39,85m²).
■ Altillo de 62m² (61,95m²).

CARACTERÍSTICAS:
■ Zonas diáfanas.
■ 2 puertas de acceso.
■ Climatización frío/calor mediante splits.
■ Ventanas aluminio.
■ Aseo privativo.
■ Pavimento de gres.
■ Plantas comunicadas mediante escaleras.
■ Gastos de comunidad e IBI a confirmar

COMUNICACIONES:
■ Bus: 11, 126, 133, H8, N9, V31
■ Metro: L9N/L10N Onze de Setembre/L1 Fabra i Puig
■ Renfe: Sant Andreu Arenal

Disponemos de llaves del local.

Para visitas u otras oficinas similares:
-t.93 490 67 48
-www.capolra.com
-contacto@capolra.com

Más información

Si desea más información de este inmueble, complete los datos a continuación.

También puede llamarnos al:

93 490 67 48

más

Certificación energética

Certificación energética: E E

Propiedades similares

Venta 33d01416v

Sarria - Sant Gervasi

Oficina en Barcelona

Referencia 33d01416v Oficina ubicada en edificio de oficinas situado en Conde Salvatierra con Vía Augusta....

  • Baños: 1
  • Sup. Construida: 126 m²

Antes: 715.000€

700.000€

Venta 33d01415v

Sarria - Sant Gervasi

Oficina en Barcelona

Referencia 33d01415v Oficina ubicada en edificio de oficinas situado en Conde Salvatierra con Vía Augusta....

  • Baños: 1
  • Sup. Construida: 125 m²

Antes: 1.100.000€

650.000€

  • CAPOLRA.com
  • C/ Guitard 43, 5º 1ª
  • 08014 Barcelona (Barcelona)
  • 93 490 67 48
  • 34934906748
  • más
C/ Guitard 43, 5º 1ª
08014
Barcelona (Barcelona)
  • CAPOLRA.com
  • C/ Guitard 43, 5º 1ª
  • 08014 Barcelona (Barcelona)
  • 93 490 67 48
  • 34934906748

© CAPOLRA.com 2026